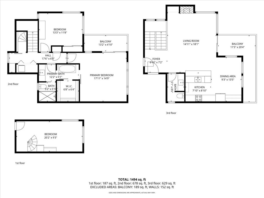
Fantastic White Water Ocean Views at this updated contemporary stylish home. Custom details throughout this 2 bedroom, 1.5 bath home on a a double merged lot. Upstairs features an open concept living, dining, and kitchen area, a half bath, and a deck. A cozy fireplace enhances your sunset watching, while the deck offers stunning views of the ocean, white water, and surrounding trees. The vaulted ceiling is adorned with decorative clerestory windows, wood detailing, and skylights that keep the space light and bright. The kitchen was tastefully updated with quartz countertops, custom soft-close cabinetry, new appliances, modern lighting, fixtures, and a slate tile backsplash. The tile flooring has a rustic wood look—easy to clean and perfect for beachside living. Additional updates include newer carpet, window blinds, drywall, and paint, giving this contemporary home standout appeal. Downstairs features the primary bedroom and bathroom, complete with a walk-in closet and an extra sink for guest convenience. A covered deck off the master bedroom provides a peaceful, private spot to take in the ocean waves. Originally a separate structure, the bonus office/workshop was professionally joined to the main house by the seller, a licensed contractor, creating a seamless and functional extension of the living space. Stone steps lead around the side of the home, and the property includes a carport and additional parking with a concrete driveway. The lot has a shed with a deck and a chicken coop, both structures have many possibilities. Escape the city and retreat to this custom ocean-view treehouse in Cambria Pines by the Sea.
Compare listings
Compare