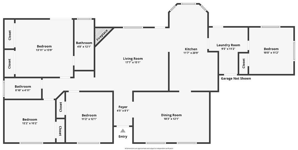
Welcome to this incredible opportunity in Hesperia! This charming single-story home offers 4 spacious bedrooms and 2 bathrooms across 1,763 square feet of comfortable living space, thoughtfully built in 2000 and perfectly situated on an expansive 2-acre corner lot. From the moment you arrive, you’ll appreciate the privacy, space, and endless potential this property provides. The generous lot size opens the door to so many possibilities—create your dream outdoor oasis, build a workshop or additional structures, design a custom pool, or even explore the potential for RV parking, toys, and more. Whether you envision a peaceful retreat, an entertainer’s paradise, or a property with room to grow, this land gives you the flexibility to bring your vision to life. Inside, the home features a functional and inviting layout with ample natural light, well-sized bedrooms, and comfortable living areas perfect for both everyday living and hosting guests. The single-story design offers convenience and accessibility, making it ideal for a variety of lifestyles. Location is key, and this home delivers—just down the street from Oak Hills High School, less than 2 miles from the I-15 freeway for easy commuting, and close to shopping, dining, and everyday conveniences. With space, location, and endless potential, this property is a rare find—ready for you to make it your own.
Compare listings
Compare