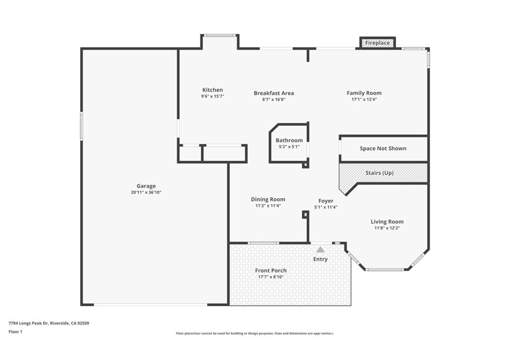
Spacious 4-bed 3-bath home with High Ceilings, a Large Private Backyard, No HOA, and Low Property Tax. With over $100,000 spent on New Roof, New HVAC, Remodeled Primary Bathroom, Window Shutters, New Tankless Water Heater with Flow-Tech System, and an Improved Front Yard for Enhanced Curb Appeal. Here’s a list of features in the home: Tile floors at entry, kitchen, family room, and bathrooms. Wood plank floors in the formal living, formal dining, stairwell, and upstairs bedrooms. Lots of windows and tall ceilings throughout brighten up this home and bring a spacious feel from the moment you walk in. Downstairs you’ll find a formal living room, formal dining room, and a family room that transitions nicely into the kitchen. A large island with breakfast bar seating anchors this space, with stainless steel appliances and a bay window looking out into your large backyard. Slider access into the backyard is possible from both the kitchen and family room. The 3-car tandem garage is a pleasant surprise with loads of space for vehicles, tools, toys, or extra storage. Upstairs, you’ll love the remodeled primary bathroom with mirrored walk-in closet. A balcony off the primary bedroom provides a bonus escape to relax as you look out toward the hills behind the home. There are essentially no rear neighbors for added privacy. All upstairs bedrooms are generous in size, with ceilings fans and vaulted ceilings adding an extra sense of elbow room. And if needed, the downstairs formal dining can easily become a home office or 5th bedroom. Upgrades to the curb appeal include an elevated front lawn supported by a cinderblock retaining wall around the perimeter. The front porch is a nice place to catch some fresh air and enjoy the quiet neighborhood. Overall, this home delivers great value, a nice layout, and in a peaceful neighborhood. Don’t miss out on this one!
Compare listings
Compare