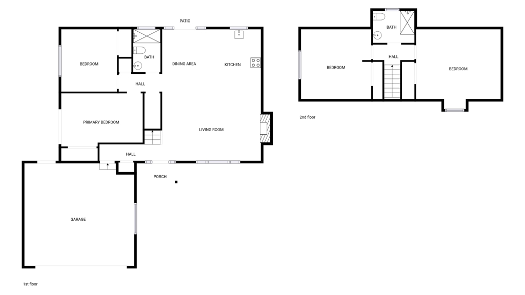
Welcome to 400 Santa Maria Dr, a home that exudes charm and sophistication. The fresh interior paint provides a clean and modern canvas, ready for your personal touch. The living room is graced with a cozy fireplace, perfect for those chilly evenings. The kitchen is a chef’s dream, boasting a functional island and an accent backsplash that adds a pop of color. All stainless steel appliances are included, ensuring a sleek and contemporary feel. Step outside to the patio, an ideal spot for morning coffee or evening relaxation. The fenced-in backyard provides privacy for outdoor activities. This home is a perfect blend of style and comfort, waiting for you to make it your own.
Compare listings
Compare